Was haben wir?

Was wollen wir?

Was könnten wir uns vorstellen?

Ganz Praktisches

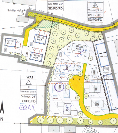
Lageplan
Bebauungsplan der Gemeinde Taufkirchen - "unser" Grundstück ist die Nummer 6
Blick nach Nord-Westen
Blick nach Nord-Westen
Blick nach Norden
Blick nach Norden, der Baumbestand bleibt erhalten
Blick nach Osten
Blick nach Osten, hinter der Mauer liegt das Gewerbegebiet mit Supermärkten
Blick nach Süden
Blick nach Süden, vorhandene Wohnbebauung